
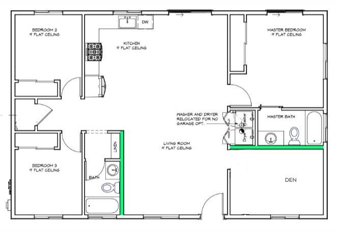
Just finished and ready for its new owner, this newly built Anderson Builders Corp., is located on a .39 acre lot with 3 bedrooms, 2 bathrooms, and a den. The kitchen boasts stainless steel appliances, slab granite countertops with a large island, a gas range, stainless steel farmhouse sink, and a microwave above the range. You have the primary bedroom on one side of the home with its own slider to the backyard, and the other two bedrooms on the other side of the house, with a distance from the family room to make sure there is peace and quiet when needed. The floors are luxury vinyl plank flooring throughout with mini-blind window coverings, upgraded closet packages, insulated interior walls between the bedrooms and bathrooms, mini-split heating and air conditioning systems, an inside laundry closet, and RV hookups on the side of the home. The .39 acre lot, has enough room in the backyard for a huge garden or to add a detached garage or shop after close of escrow. The home includes fire sprinklers, 4KW solar panels (owned), and an energy-efficient electric hot water heater to keep your utility costs down. The seller is only considering owner-occupied buyers. Seller/builder is providing a 1 year fit & finish warranty and a $2,500 CREDIT TO BUYER @ CLOSING. Call your favorite Realtor today for a viewing.
| MLS # | SN25234643 |
|---|---|
| Listing Type | For Sale |
| Style | House |
| Sub-Type | New Construction |
| Status | Active |
| Year | 2025 |
| Days On Site | 32 |
| Listing Provided By | Willow & Birch Realty, Inc | Shari Dixon |
| Bed(s) | 3 |
|---|---|
| Bath(s) | 2 Total |
| SQ Feet | 1,260 |
| Story(s) | 1 |
| Units | 1 |
| Acreage | 0.39 |
| Property View | Yes |
| Cooling | Ductless |
|---|---|
| Heating | Ductless |
| Heating Yes / No | Yes |
| Cooling Yes / No | Yes |
| Interior Features | Ceiling Fans, Eat In Kitchen, Granite Counters, Open Floorplan, Recessed Lighting, All Bedrooms Down, Bedroom On Main Level, Main Level Primary |
| Window Features | Blinds, Double Pane Windows |
| Appliances | Dishwasher, Gas Range, High Efficiency Water Heater, Microwave, Range Hood, Vented Exhaust Fan, Water To Refrigerator |
| Fireplace Yes / No | No |
| Exterior Features | Rain Gutters |
|---|---|
| Roof | Composition |
| Security Features | Carbon Monoxide Detectors, Fire Sprinkler System, Smoke Detectors |
| Construction Materials | Drywall, Stucco |
| Foundation Details | Slab |
| Lot Features | Back Yard, Sloped Down |
| Fencing | Wood |
| Parking Features | Concrete, Driveway, Rv Hook Ups, Rv Potential |
|---|---|
| Garage Yes / No | No |
| Utilities | Cable Available, Electricity Connected, Natural Gas Connected, Phone Available, Water Connected |
|---|---|
| Electric | Volts220In Laundry, Photovoltaics On Grid |
| Sewer | Septic Tank |
| Community Features | Suburban |
|---|
| State | CA |
|---|---|
| County | Butte |
| City | Paradise |
| Zip Code | 95969 |
| School District | Paradise Unified |
| High School | Paradise Unified |
| State | CA |
|---|---|
| County | Butte |
| City | Paradise |
| Zip Code | 95969 |
| School District | Paradise Unified |
| High School | Paradise Unified |